Prev
1/3
Next

Umbau Einfamilienhaus Sunnehaldenstrasse, Brütten

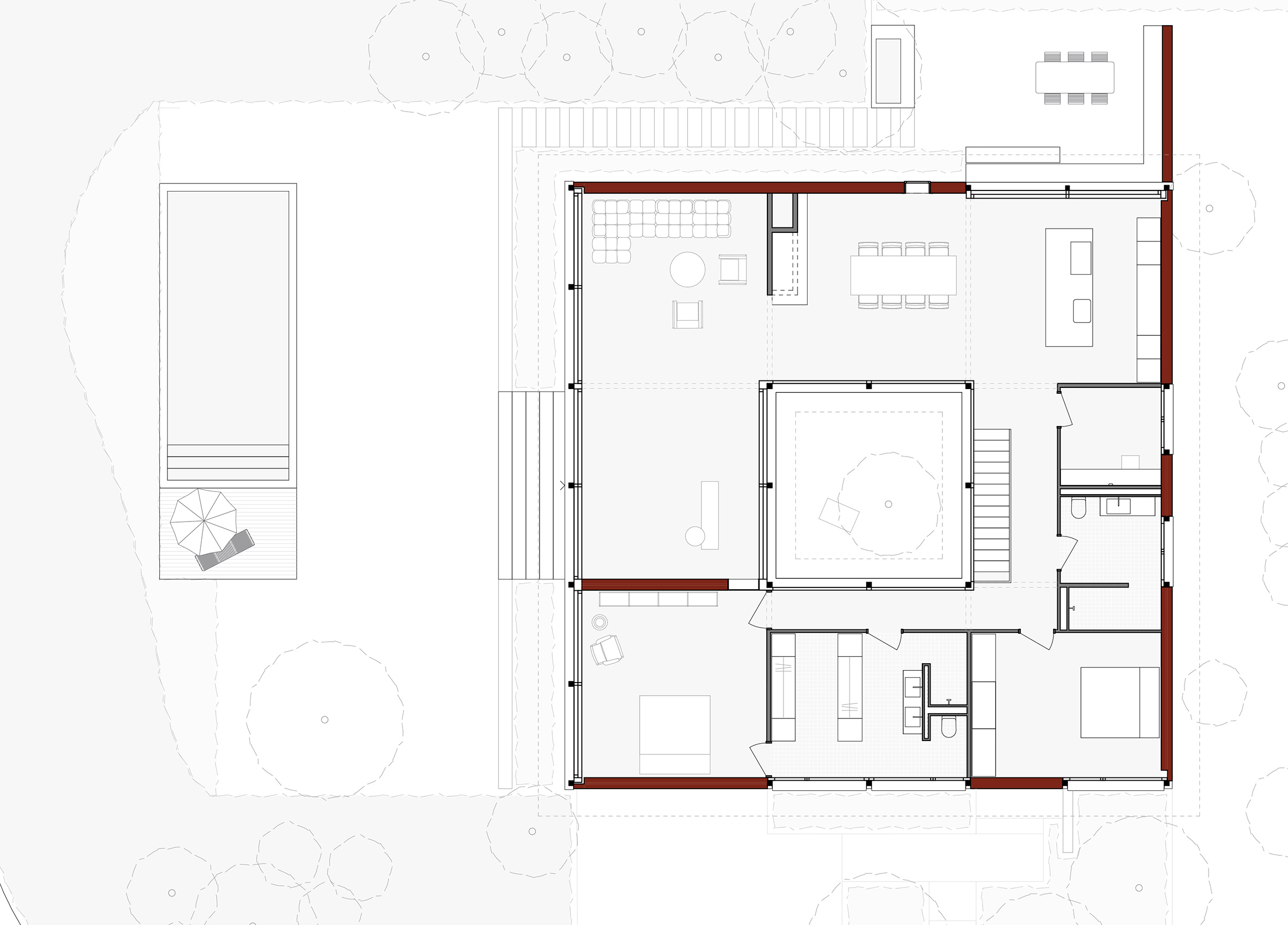
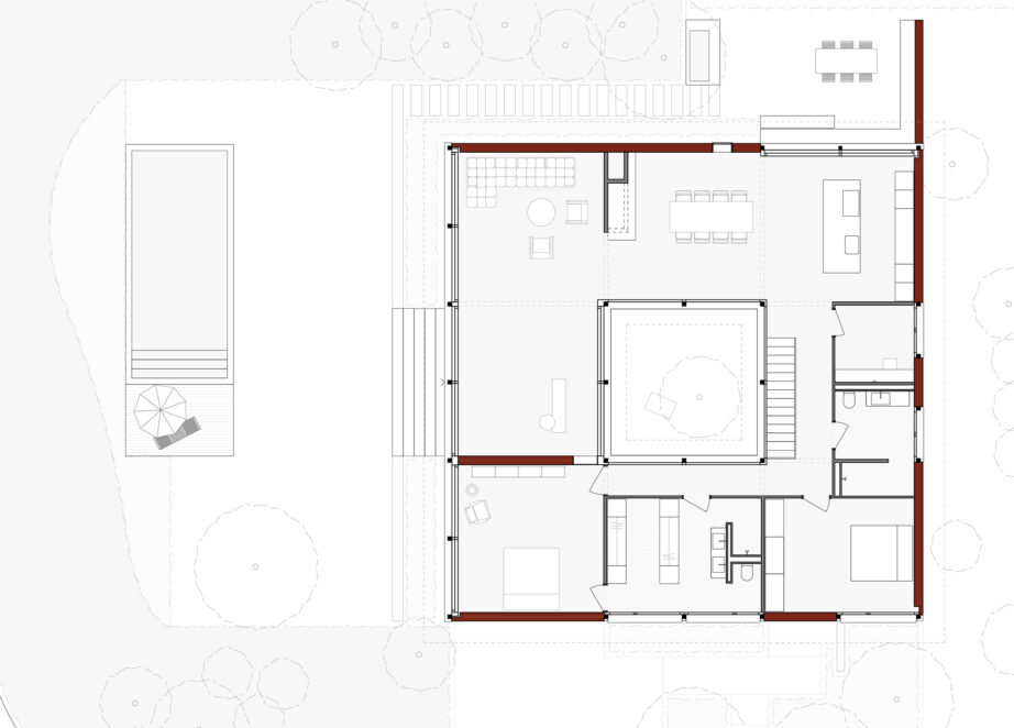
Mit gestalterischem Gespür und durch gezielten baulichen Eingriff wurde das architektonische Potenzial dieses pavillonartigen Einfamilienhauses aus den 1960er-Jahren voll entfaltet.

Der Umbau präsentiert sich als atmosphärische Mischung aus Prairie House und Japanischem Pavillon.

Die Erweiterung der Wohnfläche schliesst den ursprünglich U-förmigen Grundriss zu einer umlaufenden Wohnebene mit Innenhof, gestaltet als Kiesgarten mit Kiefer.
Der offene, vom Holztragwerk gegliederte Grundriss und die grosszügige Verglasung schaffen vielfältige Blickbezüge zwischen Innen und Aussen.

Das originale Sichtmauerwerk aus rotem Ziegel verankert das Haus in seiner Zeit und zeugt von der Qualität des Bestandes. Geschliffene Betonböden,  Lärchenholz, Glasmosaik und fein verputzte Wände verweben den Charakter der ursprünglichen Materialien zu einer zeitgemässen, klaren Architektursprache.

Fotografie: Björn Siegrist