Alterswohnungen Zehntenweg, Wiesendangen

Projektwettbewerb 2026
2. Rang

Die Gemeinde Wiesendangen beabsichtigt auf dem Areal Zehntenweg den Neubau von Alterswohnungen für einkommensschwächere Menschen. Ein wirtschaftlicher und ressourcenschonender Neubau in Holzbauweise verbindet preisgünstigen Wohnraum mit hoher Wohnqualität und erhält den prägenden Baumbestand als Freiraumqualität.

Städtebau und Architektur

Der Neubau besetzt die südwestliche Ecke des Areals und wird als Längsbau parallel zur Kehlhofstrasse positioniert. Mit dem bestehenden Gebäude bildet der Neubau eine Verschränkung der Baukörper, die den Auftakt zum Areal bildet und einen klar gefassten Ankunfts- und Erschliessungsbereich formuliert. Von hier öffnet sich der Aussenraum in die parkartig erhaltenen Grünflächen mit hoher Aufenthaltsqualität.

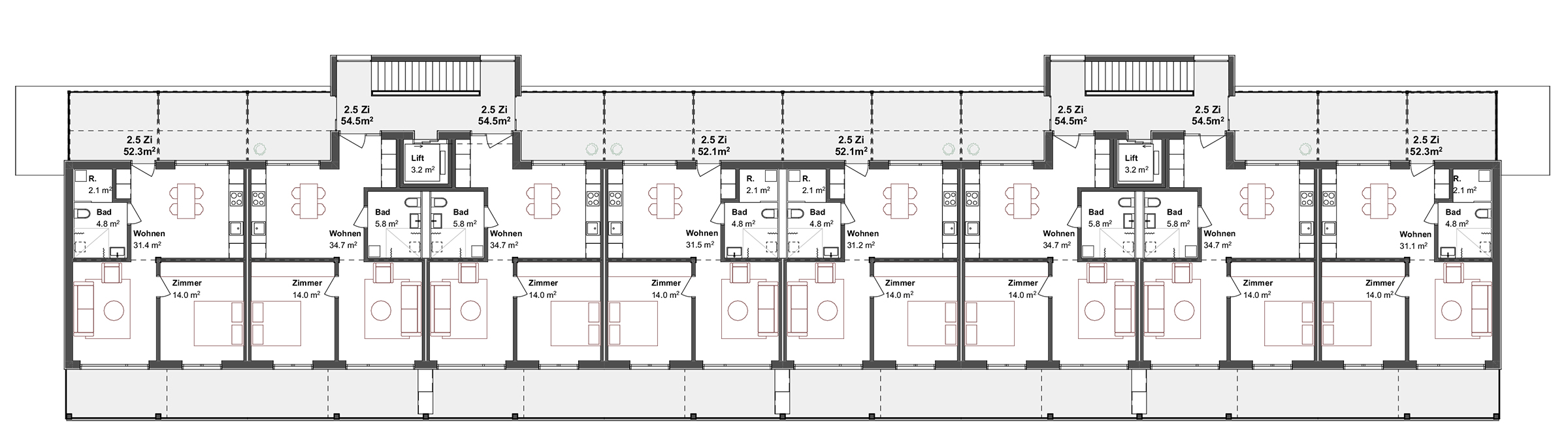
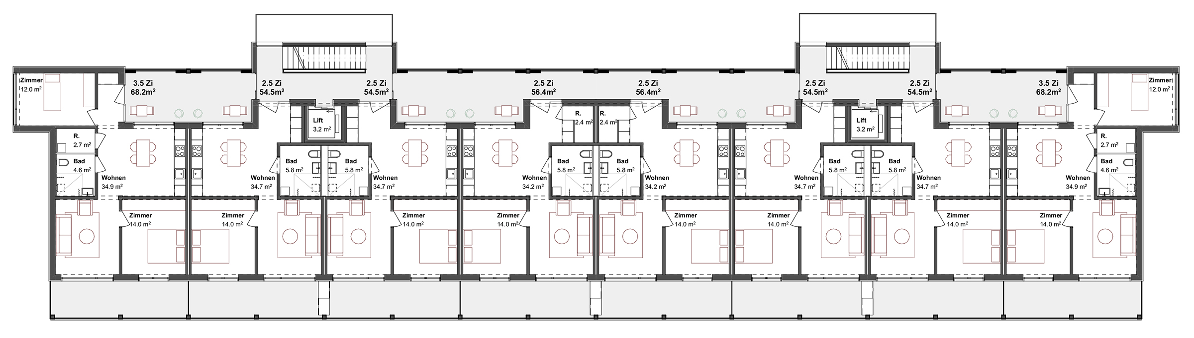
Die gegliederte Volumetrie mit wechselnden Gebäudehöhen sowie Vor- und Rücksprüngen verleiht dem langgestreckten Baukörper Massstäblichkeit und Lebendigkeit. Zwei risalitartig ausgebildete Treppenhäuser schaffen eine klare Adressierung und binden den Neubau an den Erschliessungsbereich an.

Entlang der Nordfassade erschliessen die Treppenhäuser je vier Wohnungen pro Geschoss. In den Regelgeschossen ist diese Laubenerschliessung als verglaster, öffenbarer Wintergarten ausgebildet. Er dient als wettergeschützter Zugang und zugleich als gemeinschaftlicher Begegnungs- und Aufenthaltsraum.

Die Wohnungen sind als durchgesteckte Einheiten organisiert und weisen einen räumlich klar gegliederten Grundriss auf. Entlang der Erschliessungsseite liegen Entrée, Kochen und Essen, während sich Wohnen und Schlafen zur ruhigen Südseite orientieren. Eine durchgehende Verandaschicht erweitert hier den Wohnraum nach aussen und bildet zugleich eine wirksame Filterzone zur Kehlhofstrasse.

Der Neubau ist als Holzbau konzipiert. Ein klares Achsmass, tragende Aussen- und Trennwände sowie ein hoher Wiederholungsgrad ermöglichen eine wirtschaftliche Konstruktion mit hohem Vorfertigungsgrad. Die einfache Gebäudestruktur schafft Flexibilität im Grundriss und bildet die Grundlage für eine effiziente und ressourcenschonende Realisierung.

Die kompakte Gebäudetechnik, der reduzierte Einsatz von Installationen sowie passive klimatische Massnahmen tragen zur Wirtschaftlichkeit des Projekts bei. Die Wärmeversorgung erfolgt über Erdwärmesonden, ergänzt durch eine Photovoltaikanlage auf der nach Süden ausgerichteten Dachfläche.

Die Konzeption des Aussenraums baut auf dem prägenden Baumbestand und den vorhandenen Qualitäten des Ortes auf. Gemeinschaftliche Aufenthaltsbereiche, chaussierte Wege und gezielte Neupflanzungen verbinden Architektur und Landschaft zu einem stimmigen Gesamtbild.

 

Landschaftsarchitektur Brogle Rüeger
Visualisierungen Tom Schmid